Home
About
The Passive House Standard
Mission, Vision and Values
Consulting
Passive House Consulting Services
Energy Reduction Evaluation
Energy Efficiency Retrofit
Energy Management
Portfolio
Retrofit
New Construction
Middlesex House
Middlesex Condo
Elm Place Consulting
Puerto Madero
Contact
New Construction
New Construction
Middlesex Condo
Back view
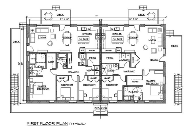
First floor plane